ACCUEIL
BONNEVAL L'HIVER
BONNEVAL L'ETE
Photos
NOS APPARTEMENTS
Appartement "Le Tchou"
Appartement "Le Midi"
Appartement "La Fontaine"
Appartement "Le Coppo"
TARIFS ETE 2025
TARIF HIVER 2025/26
ACCES
PARTENAIRES
CONTACT
ACCUEIL
BONNEVAL L'HIVER
BONNEVAL L'ETE
Photos
NOS APPARTEMENTS
Appartement "Le Tchou"
Appartement "Le Midi"
Appartement "La Fontaine"
Appartement "Le Coppo"
TARIFS ETE 2025
TARIF HIVER 2025/26
ACCES
PARTENAIRES
CONTACT
Location d 'appartements**** Bonneval sur arc
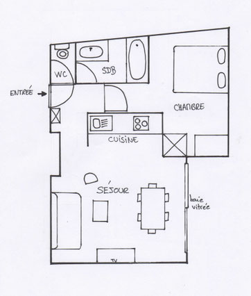
Plan de l'appartement Le Tchou
40 m²
2 pièces
2/3 personnes